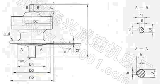
SizeType
L1
P
E
M
n-d
D2
D3
D4
Input
Output
Weight
D1
e1
b1
h1
t1
D
e
b
h
t
sxm
8075
145
3
8
34
6-9
120
102
80
12
25
4
13.5
9.5
14
25
5
16
11
3.5
8085
151
3
9
42
160
134
110
12
25
4
13.5
9.5
18
30
6
20.5
14.5
4.5
8095
202
3
9
48
160
134
110
15
25
5
17
12
28
35
8
31
24
9
8105
208
3
9
48
160
134
110
15
25
5
17
12
28
35
8
31
24
11
8115
259
4
13
69
210
180
140
18
35
6
20.5
14.5
38
55
10
41
33
23
8125
259
4
13
69
210
180
140
18
35
6
20.5
14.5
38
55
10
41
33
23
8130
321
4
15
76
260
230
200
22
40
6
24.5
18.5
50
61
14
53.5
44.5
M10X18
42
8135
321
4
15
76
260
230
200
22
40
6
24.5
18.5
50
61
14
53.5
44.5
M10X18
42
8145
341
4
15
96
260
230
200
22
40
6
24.5
18.5
50
81
14
53.5
44.5
M10X18
43
8155
341
4
15
96
260
230
200
22
40
6
24.5
18.5
50
81
14
53.5
44.5
M10X18
43
 
 
Size
Type
L1
P
E
M
n-d
D2
D3
D4
K
W
Input
Output
Weight
D1
e1
b1
h1
t1
D
e
b
h
t
sxm
8160
413
4
20
89
6-11
340
310
270
217
200
30
45
8
33
26
60
80
18
64
53
M10X18
79
8165
413
4
20
89
6-11
340
310
270
217
200
30
45
8
33
26
60
80
18
64
53
M10X18
79
8170
477
5
22
94
8-14
400
360
316
222
225
35
55
10
38
30
70
84
20
74.5
62.5
M12X24
121
8175
477
5
22
94
8-14
400
360
316
222
225
35
55
10
38
30
70
84
20
74.5
62.5
M12X24
121
8180
527
5
22
110
8-18
430
390
345
237
240
40
65
12
43
35
80
100
22
85
71
M12X24
150
8185
527
5
22
110
8-18
430
390
345
237
240
40
65
12
43
35
80
100
22
85
71
M12X24
150
 
 
Size Type
L1
P
E
M
n-d
D2
D3
D4
K
W
Input
Output
Weight
D1
e1
b1
h1
t1
D
e
b
h
t
sxm
8190
617
6
30
145
12-φ18
490
450
400
360
200
45
70
14
48.5
39.5
95
125
25
100
86
M20×34
225
8195
617
6
30
145
12-φ18
490
450
400
360
200
45
70
14
48.5
39.5
95
125
25
100
86
M20×34
225
8205
678
5
30
204
8-φ22
455
405
355
376
287
45
82
14
48.5
39.5
100
165
28
106
90
M20×34
 
8215
708
7
35
203
8-φ24
490
440
390
400
290
50
82
14
53.5
44.5
110
165
28
116
100
M20×34
 
8225
752
10
35
210
8-φ27
535
475
415
400
326
55
82
16
59
49
120
165
32
127
109
M20×34
 
8235
839
10
40
250
8-φ27
570
510
450
413
344
60
105
18
64
53
130
200
32
137
119
M24×41
 
8245
877
10
40
250
8-φ33
635
560
485
420
365
65
105
18
69
58
140
200
36
148
128
M24×41
 
8255
1040
10
45
295
8-φ33
685
610
535
432
425
80
130
22
85
71
160
240
40
169
147
M30×49
 
8265
1150
10
50
360
8-φ39
750
660
570
460
431
80
130
22
85
71
170
300
40
179
157
M30×49
 
8270
1462
10
60
355
8-φ39
1160
1020
900
610
613
90
150
25
95
81
180
320
45
190
165
M30×52
 
8275
1462
10
60
355
8-φ39
1160
1020
900
610
613
90
150
25
95
81
180
320
45
190
165
M30×52