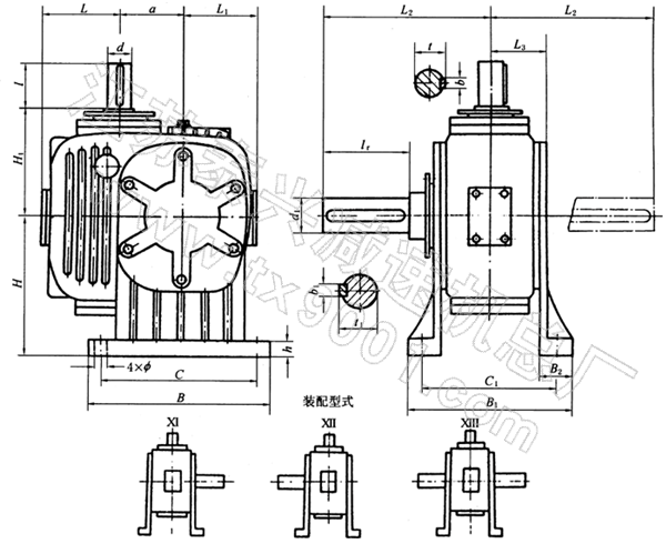
TPG80、TPG100、通用型减速机形式及外形尺寸(Ⅰ—Ⅲ)
TPG通用型减速器形式及外形尺寸 (mm)

型号
a
B
B1
B2
C
C1
H
H1
L
L1
L2
L3
L4
l
l1
d
d1
b
b1
t
t 1
h
Ф
质量(kg)
TPG80
80
250
242
50
220
206
100
280
381
130
210
86
201
58
110
35
45
10
14
38
48.5
18
19
53
TPG100
100
290
284
58
250
240
110
318
464
160
235
102
254
82
110
40
55
12
16
43
59
20
19
85
 
TPG80、TPG100、通用型减速机形式及外形尺寸(Ⅳ—Ⅵ)
TPG通用型减速器形式及外形尺寸(mm)

型号
a
B
B1
C
C1
H
H1
L
L1
L2
L3
B2
l
l1
d
d1
t
t 1
b
b1
h
Ф
质量(kg)
TPG80
80
250
242
220
206
180
360
201
381
210
86
50
58
110
35
45
38
48.5
10
14
18
19
53
TPG100
100
290
284
250
240
210
415
254
464
235
102
58
82
110
40
55
43
59
12
16
20
19
85

 
TPG80、TPG100、通用型减速机形式及外形尺寸(Ⅶ—Ⅹ)
TPG通用型减速器形式及外形尺寸 (mm
型号
a
(φ)D
h1
B
B1
C
C1
H
H1
L
L2
L3
L4
L5
l
l1
d
d1
b
b1
t
t 1
L6
h
Ф
质量(kg)
TPG80
80
140
5
270
260
240
230
110
86
210
100
180
180
201
58
110
35
45
10
14
38
48.5
75
18
19
53
TPG100
100
170
5
300
300
260
260
125
102
235
125
203
210
254
82
110
40
55
12
16
43
59
90
20
19
85
 
TPG80、TPG100、通用型减速机形式及外形尺寸(Ⅺ—XIII)
TPG通用型减速器形式及外形尺寸 (mm)

型号
a
B
B1
C
C1
H1
H
B2
L
L1
L2
L3
l
l1
d
d1
t
t 1
b
b1
h
Ф
质量(kg)
TPG80
80
230
242
220
206
143
180
50
100
98
210
86
58
110
35
45
38
48.5
10
14
18
19
53
TPG100
100
270
284
220
240
172
210
58
106
123
235
100
82
110
40
55
43
59
12
16
20
19
85

 
减速器的额定输入功率P1
中心距a(mm)
传动比i
输入轴转速n1(r/min)
500
600
750
1000
1500
额定输入功率P1(kW)
80
10.0
12.5
16.0
20.0
25.0
31.5
40.0
50.0
63.0
2.51
2.07
1.75
1.36
1.10
0.92
0.70
0.57
0.49
2.83
2.35
2.01
1.53
1.25
1.05
0.79
0.63
0.55
3.21
2.74
2.34
1.78
1.45
1.23
0.92
0.74
0.67
3.85
3.31
2.83
2.17
1.76
1.47
1.08
0.89
0.78
4.94
4.17
3.57
2.74
2.23
1.88
1.42
1.13
0.99
100
10.0
12.5
16.0
20.0
25.0
31.5
40.0
50.0
63.0
4.85
4.06
3.46
2.64
2.15
1.81
1.37
1.09
0.96
5.17
4.55
3.90
2.98
2.44
2.04
1.53
1.24
1.08
6.30
5.27
4.55
3.46
2.81
2.36
1.78
1.43
1.25
7.52
6.26
5.42
4.16
3.38
2.83
2.15
1.72
1.50
8.23
7.78
6.66
5.19
4.24
3.56
2.69
2.16
1.88
125
10.0
12.5
16.0
20.0
25.0
31.5
40.0
50.0
63.0
9.17
7.66
6.56
5.08
4.09
3.43
2.59
2.09
1.82
10.00
8.46
7.42
5.68
4.58
3.84
2.90
2.33
2.03
11.76
9.84
8.48
6.43
5.29
4.44
3.35
2.70
2.34
13.91
11.66
10.21
7.78
6.28
5.27
3.98
3.19
2.78
17.11
13.97
12.29
9.42
7.71
6.47
4.87
3.92
3.41