
本公司生产近30类,计140多种搅拌器,从最常见的(包括已有的HB5标准,SB90标准各种搅拌器)到各种复杂形状或特殊用途的搅拌器。可按H/T2123-91标准的各种规格尺寸系列制造,也可根据用户生产工艺需求,代为设计制造各种特殊要求、特殊规格或特殊用途的搅拌器。
搅拌器型号标注方法:
 |
|
| 材料代号 |
| 搅拌器轴孔径 |
| 搅拌器的外径, |
| 搅拌器型式代号 |
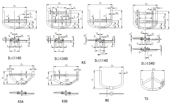
框、锚式搅拌器
椭圆底框式-KS、直角锥底框式-KSA、钝角锥底框式-KSB、锚式-MS、搪玻璃专用锚式-TS
此类搅拌器为慢速型搅拌器,适用于中高粘度液体的混和、传热或反应等过程。常在层流装操作,产生水平环向流,如为折叶或角钢型叶,可增加桨叶附近的涡流。可根据需要在桨上增加立叶和横梁,以增大搅拌范围。适用介质粘范围μ<105cP,转速n=1-100rpm。

框式、锚式搅拌器主要尺寸
| 碳钢、不锈钢 |
碳钢 |
不锈钢 |
重量 |
| D1 |
d |
H |
d1 |
h1 |
h2 |
L |
e |
m |
f |
N/n≤ |
a |
δ |
c |
d |
a |
δ |
b |
c |
f1 |
d2 |
碳钢、不锈钢 |
470
470 |
30
40 |
370
370 |
M8
M12 |
117
117 |
165
165 |
-
- |
3
3 |
90
100 |
25
35 |
0.012
0.020 |
36
36 |
3
4 |
170
210 |
M8
M12 |
36
36 |
3
4 |
36
36 |
130
140 |
-
- |
M8
M12 |
3.5/3.5
4.5/4.5 |
570
570 |
30
40 |
450
450 |
M8
M12 |
142
142 |
200
200 |
-
- |
3
3 |
90
100 |
25
35 |
0.012
0.038 |
40
40 |
3
4 |
170
210 |
M8
M12 |
40
40 |
3
4 |
40
40 |
130
140 |
-
- |
M8
M12 |
5/5
7.5/7.5 |
660
660 |
40
50 |
520
520 |
M12
M16 |
165
165 |
240
240 |
-
- |
3
5 |
100
120 |
35
35 |
0.038
0.069 |
50
50 |
3
4 |
210
240 |
M12
M16 |
50
50 |
3
4 |
50
50 |
140
170 |
-
- |
M12
M16 |
7/7
10/10 |
760
760 |
40
50 |
600
600 |
M12
M16 |
190
190 |
275
275 |
-
- |
3
5 |
100
120 |
35
35 |
0.047
0.088 |
50
50 |
4
5 |
210
240 |
M12
M16 |
50
50 |
4
5 |
50
50 |
140
170 |
-
- |
M12
M16 |
10/12
13/14 |
850
850 |
50
65 |
680
680 |
M16
M16 |
212
212 |
310
310 |
-
- |
5
7 |
120
140 |
35
40 |
0.088
0.160 |
63
63 |
4
5 |
240
270 |
M16
M16 |
63
63 |
4
5 |
63
63 |
170
190 |
-
- |
M16
M16 |
14/14
18/18 |
950
950 |
50
65 |
760
760 |
M16
M16 |
237
237 |
350
350 |
-
- |
5
7 |
120
140 |
35
40 |
0.088
0.160 |
63
63 |
4
5 |
240
270 |
M16
M16 |
63
63 |
4
5 |
63
63 |
170
190 |
-
- |
M12
M16 |
16/16
18/20 |
1140
1140 |
50
65 |
910
910 |
M16
M16 |
285
285 |
420
420 |
-
- |
5
7 |
120
140 |
35
40 |
0.088
0.160 |
70
70 |
4
5 |
240
270 |
M16
M16 |
70
70 |
4
5 |
70
70 |
170
190 |
-
- |
M12
M16 |
26/26
32/32 |
1340
1340
1340 |
50
65
80 |
1070
1070
1070 |
M16
M16
M18 |
335
335
335 |
460
450
450 |
670
670
670 |
5
7
7 |
120
140
170 |
50
50
50 |
0.088
0.250
0.470 |
80
80
80 |
5
5
6 |
270
290
330 |
M16
M16
M18 |
90
90
90 |
8
8
10 |
25
35
35 |
190
280
310 |
60
60
60 |
M12
M12
M12 |
50/52
50/55
62/69 |
1530
1530
1530 |
50
65
80 |
1220
1220
1220 |
M16
M16
M18 |
382
382
382 |
510
510
510 |
770
770
770 |
5
7
7 |
120
140
170 |
50
50
50 |
0.088
0.250
0.470 |
90
90
90 |
6
6
6 |
270
290
330 |
M16
M16
M16 |
100
100
100 |
8
10
10 |
25
35
45 |
270
290
320 |
60
60
60 |
M12
M12
M12 |
71/71
73/85
77/89 |
1730
1730
1730 |
65
80
95 |
1380
1380
1380 |
M16
M18
M22 |
432
432
432 |
580
580
580 |
870
870
870 |
7
7
7 |
140
170
200 |
70
70
70 |
0.250
0.470
0.815 |
100
100
100 |
6
6
7 |
330
370
400 |
M16
M18
M22 |
120
120
120 |
10
12
12 |
35
45
50 |
330
360
390 |
80
80
80 |
M16
M16
M16 |
88/105
95/105
113/135 |
1920
1920
1920 |
65
80
95 |
1530
1530
1530 |
M16
M18
M22 |
480
480
480 |
640
640
640 |
960
960
960 |
7
7
7 |
140
170
200 |
70
70
70 |
0.250
0.470
0.800 |
110
110
110 |
7
7
7 |
330
370
400 |
M16
M18
M22 |
130
130
130 |
10
12
12 |
35
45
50 |
330
360
390 |
80
80
80 |
M16
M16
M16 |
125/150
132/182
138/195 |
2120
2120
2120 |
80
95
110 |
1690
1690
1690 |
M18
M22
M22 |
530
530
530 |
710
710
710 |
1060
1060
1060 |
7
7
9 |
170
200
230 |
70
70
70 |
0.470
0.800
1.060 |
125
125
125 |
8
8
8 |
370
400
440 |
M18
M22
M22 |
150
150
150 |
12
12
14 |
45
50
60 |
360
390
420 |
100
100
100 |
M16
M16
M16 |
184/220
191/228
194/266 |
2320
2320
2320 |
80
95
110 |
1850
1850
1850 |
M18
M22
M22 |
580
580
580 |
780
780
780 |
1160
1160
1160 |
7
7
9 |
170
200
230 |
70
70
70 |
0.470
0.815
1.041 |
140
140
140 |
10
10
10 |
370
400
440 |
M18
M22
M22 |
160
160
1690 |
10
12
14 |
45
50
60 |
360
390
420 |
110
110
110 |
M16
M16
M16 |
270/324
277/385
281/435 |
2520
2520
2520 |
82
95
110 |
2010
2010
2010 |
M18
M22
M22 |
630
630
630 |
840
840
840 |
1260
1260
1260 |
7
7
9 |
170
200
230 |
70
70
70 |
0.470
0.850
1.100 |
160
160
160 |
10
10
10 |
370
400
440 |
M18
M22
M22 |
180
180
180 |
10
12
14 |
45
50
60 |
360
390
420 |
130
130
130 |
M16
M16
M16 |
336/403
341/484
350/564 |
备注:搅拌器内孔可根据用户要求制作,轮毂高度一般与内孔相一致。
|