本公司生产近30类,计140多种搅拌器,从最常见的(包括已有的HB5标准,SB90标准各种搅拌器)到各种复杂形状或特殊用途的搅拌器。可按H/T2123-91标准的各种规格尺寸系列制造,也可根据用户生产工艺需求,代为设计制造各种特殊要求、特殊规格或特殊用途的搅拌器。
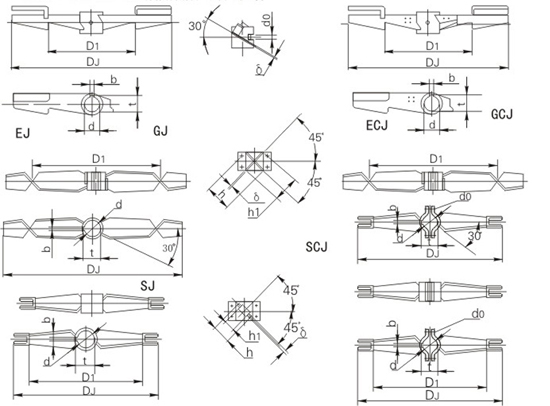
搅拌器型号标注方法:
 |
|
| 材料代号 |
| 搅拌器轴孔径 |
| 搅拌器的外径, |
| 搅拌器型式代号 |
折叶桨式搅拌器
E型折叶桨式EJ、E型折叶可拆桨式ECJ、G型折叶桨式GJ、G型折叶可拆桨式GCJ、S型双折叶桨式SJ、S型双折叶可拆桨式SCJ、C型双折叶桨式CJ、C型双折叶可拆桨式CCJ
本类搅拌器是斜叶桨式衍生形式,都是强化了叶末端的液流状态,湍流加强,剪切作用明显提高、对两相物性相差大的混合、分散、悬浮、传热都有增效作用,但由于桨型复杂,制造成本高,局限了一部。

折叶桨式搅拌器主要尺寸
| DJ |
d |
D1 |
h |
h1 |
螺栓 |
b |
t |
N/不大于 |
δ |
重量 |
不锈钢/碳钢 |
| 不锈钢/碳钢 |
SCJ |
CJ |
GJ |
GCJ |
| 350 |
30 |
250 |
35 |
30 |
M12 |
8 |
33.3 |
0.006 |
6/8 |
1.496 |
1.51 |
2.49 |
3.306 |
| 35 |
10 |
38.3 |
1.655 |
1.67 |
2.88 |
3.66 |
| 400 |
35 |
280 |
40 |
10 |
38.3 |
0.01 |
8/10 |
2.17 |
2.16 |
3.65 |
4.773 |
| 40 |
12 |
43.3 |
2.38 |
2.40 |
3.92 |
4.978 |
| 450 |
40 |
310 |
45 |
38 |
12 |
43.3 |
0.015 |
10/10 |
3.192 |
3.23 |
4.89 |
6.086 |
| 45 |
14 |
48.8 |
3.04 |
3.08 |
4.75 |
5.891 |
| 500 |
40 |
350 |
50 |
40 |
M12 |
12 |
43.2 |
0.015 |
10/10 |
4.06 |
4.12 |
5.45 |
6.649 |
| 45 |
14 |
48.8 |
3.87 |
3.92 |
5.31 |
6.451 |
| 550 |
40 |
380 |
55 |
12 |
43.3 |
4.36 |
4.78 |
6.07 |
7.271 |
| 45 |
14 |
48.8 |
4.16 |
4.55 |
5.93 |
7.069 |
| 600 |
45 |
400 |
60 |
45 |
14 |
18.8 |
0.026 |
10/12 |
5.52 |
5.64 |
6.85 |
10.47 |
| 55 |
16 |
59.3 |
5.99 |
6.13 |
8.19 |
10.37 |
| 700 |
50 |
480 |
70 |
50 |
14 |
53.8 |
0.04 |
12/14 |
6.99 |
7.79 |
11.48 |
13.96 |
| 60 |
18 |
64.4 |
7.64 |
8.48 |
12.38 |
14.76 |
| 850 |
55 |
560 |
85 |
65 |
16 |
59.3 |
0.053 |
12/14 |
11.55 |
11.69 |
15.88 |
19.14 |
| 70 |
20 |
74.9 |
12.51 |
12.71 |
17.26 |
20.38 |
| 950 |
55 |
650 |
95 |
16 |
59.3 |
13.72 |
13.93 |
18.44 |
21.70 |
| 70 |
20 |
74.9 |
14.98 |
15.23 |
20.23 |
23.35 |
| 1100 |
60 |
750 |
110 |
80 |
M16 |
18 |
64.4 |
0.07 |
12/14 |
19.86 |
20.15 |
24.59 |
28.09 |
| 75 |
20 |
79.9 |
21.56 |
21.91 |
26.99 |
30.33 |
| 1200 |
70 |
840 |
120 |
90 |
20 |
74.9 |
0.1 |
14/16 |
16.68 |
27.62 |
33.38 |
37.10 |
| 80 |
22 |
85.4 |
28.61 |
29.60 |
36.17 |
39.73 |
| 1400 |
75 |
1000 |
140 |
100 |
20 |
79.9 |
0.12 |
14/16 |
34.22 |
34.76 |
42.01 |
45.23 |
| 80 |
22 |
85.4 |
36.89 |
37.51 |
45.96 |
49.52 |
| 1500 |
80 |
1080 |
150 |
105 |
M20 |
22 |
85.4 |
0.23 |
14/16 |
42.17 |
42.81 |
48.89 |
53.67 |
| 85 |
22 |
90.4 |
45.23 |
45.96 |
53.78 |
58.34 |
| 1700 |
85 |
1220 |
170 |
130 |
22 |
90.4 |
0.27 |
14/16 |
53.69 |
54.54 |
62.58 |
67.72 |
| 90 |
25 |
95.4 |
57.64 |
58.61 |
68.57 |
73.47 |
| 1800 |
90 |
1300 |
180 |
130 |
25 |
95.4 |
0.38 |
16/18 |
64.53 |
65.56 |
78.60 |
84.20 |
| 100 |
28 |
106.4 |
69.16 |
70.33 |
85.02 |
90.38 |
| 2000 |
95 |
1500 |
200 |
140 |
25 |
99.4 |
0.38 |
16/18 |
80.83 |
82.15 |
93.01 |
98.61 |
| 100 |
28 |
106.4 |
86.61 |
88.09 |
101.1 |
106.49 |
| 2100 |
95 |
1500 |
210 |
150 |
25 |
99.4 |
0.5 |
16/18 |
90.29 |
91.98 |
104.2 |
110.53 |
| 110 |
28 |
116.44 |
96.65 |
98.52 |
113.3 |
119.28 |
| 2300 |
100 |
1650 |
230 |
170 |
M24 |
28 |
106.4 |
0.65 |
18/20 |
114.10 |
115.66 |
136.5 |
143.5 |
| 120 |
32 |
127.4 |
121.283 |
123.5 |
147.1 |
153.8 |
| 2500 |
110 |
1800 |
250 |
180 |
28 |
116.1 |
0.83 |
18/20 |
134.88 |
136.7 |
160.0 |
167.4 |
| 130 |
32 |
137.4 |
143.39 |
146.0 |
172.6 |
179.6 |
备注:搅拌器内孔可根据用户要求制作,轮毂高度一般与内孔相一致。
|